1 of 10
Spacious Apartment with Scenic City Views
Auction - Saturday, 20th of August at 3:00pm Onsite
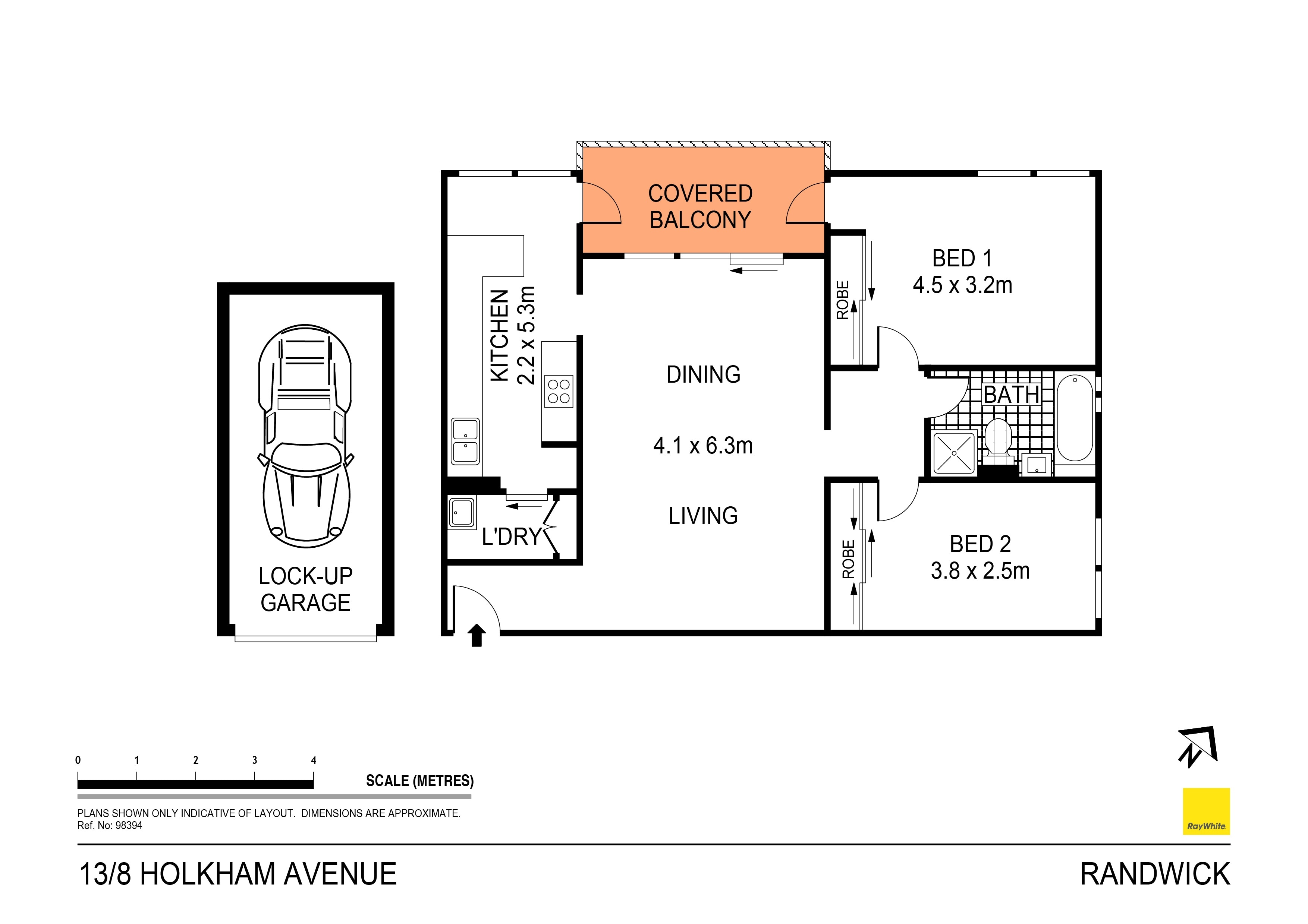
On the doorstep of Centennial Park and Randwick Racecourse, this second floor security apartment is one of only 16 in a low-rise block quietly tucked away close to the light rail and within strolling distance of Randwick's main street shops, restaurants and cafes. Light filled interiors offer a generous layout with multiple rooms opening to a northwest entertainment balcony featuring leafy district and sprawling city skyline views. Complete with parking, the apartment is ideal for a young couple or investor and makes an idyllic lifestyle choice in a super convenient yet quiet location.
- Substantial open plan living/dining area
- Covered balcony with city skyline views
- Large modern kitchen and full bathroom
- Two good sized bedrooms with built-ins
- Internal laundry, allocated lockup garage
- Footsteps to Wansey Road light rail stop
- Short walk to main street shops and cafes
- Minutes to University of NSW and beaches











