Tri-level townhouse with superb sunny alfresco entertaining
- ** enter via Abercrombie Street***
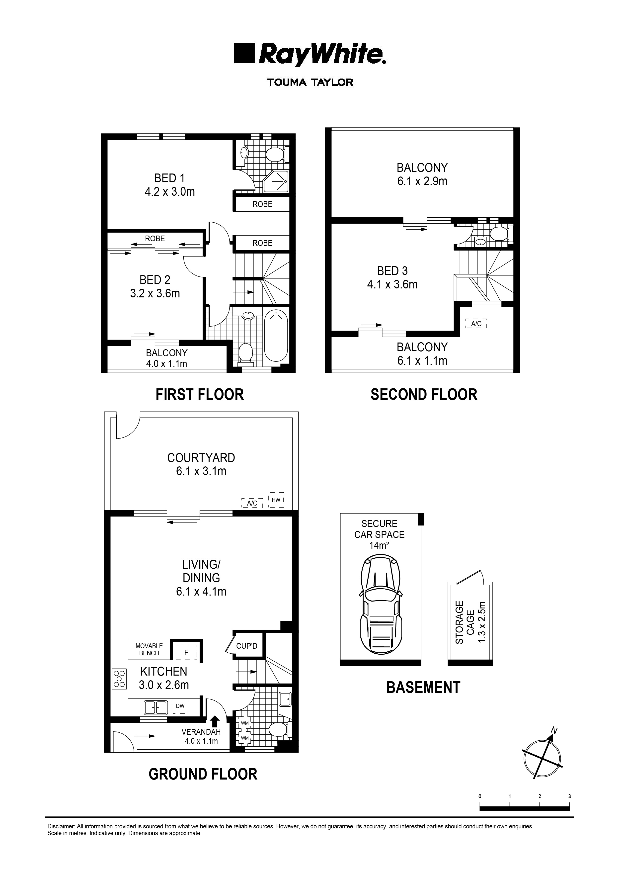
Lifestyle excellence meets village convenience in this fabulous terrace-style townhouse, offering an exceptional urban sanctuary in the heart of vibrant Darlington. Spanning three designer levels and flooded with natural light, it reveals a clever layout with open plan living and dining areas extending to a north facing sun soaked entertainers' courtyard. There is a gourmet Calacatta marble kitchen with Smeg gas appliances, while the upper-level bedrooms are all double-sized and the master features a walk-in wardrobe and an ensuite. There is an internal laundry with a third w/c, while a further highlight is the expansive rooftop terrace with superb views towards the city skyline.
Complete with convenient access via the courtyard to a secure basement car space plus a storage cage, it promises ultra-convenience within footsteps of an array of hip pubs, cafés and buzzing eateries, while enjoying close proximity to Sydney University, Redfern Station and South Everleigh' precinct.
- Open plan living/dining flows freely to courtyard
- N/facing sun soaked entertainers' courtyard
- Gourmet Calacatta marble kitchen with b/bar
- Smeg gas cooktop/oven, integrated dishwasher
- Superb rooftop terrace with views to the CBD
- Double sized bedrooms, two fitted with BIR's
- Master with WIR ensuite, split cycle air con
- Second bedroom opens to covered sunlit balcony
- Wide engineered timber flooring, high ceilings
- Internal laundry/powder room, understair storage
- Access via courtyard to secure parking space
- Moments to Sydney University, Redfern Station
- Close to South Everleigh, White Rabbit Gallery
- Surrounded by hip village pubs, cafés, eateries






















































