1 of 13
Stylish Haven Accessing Resort-Style Facilities
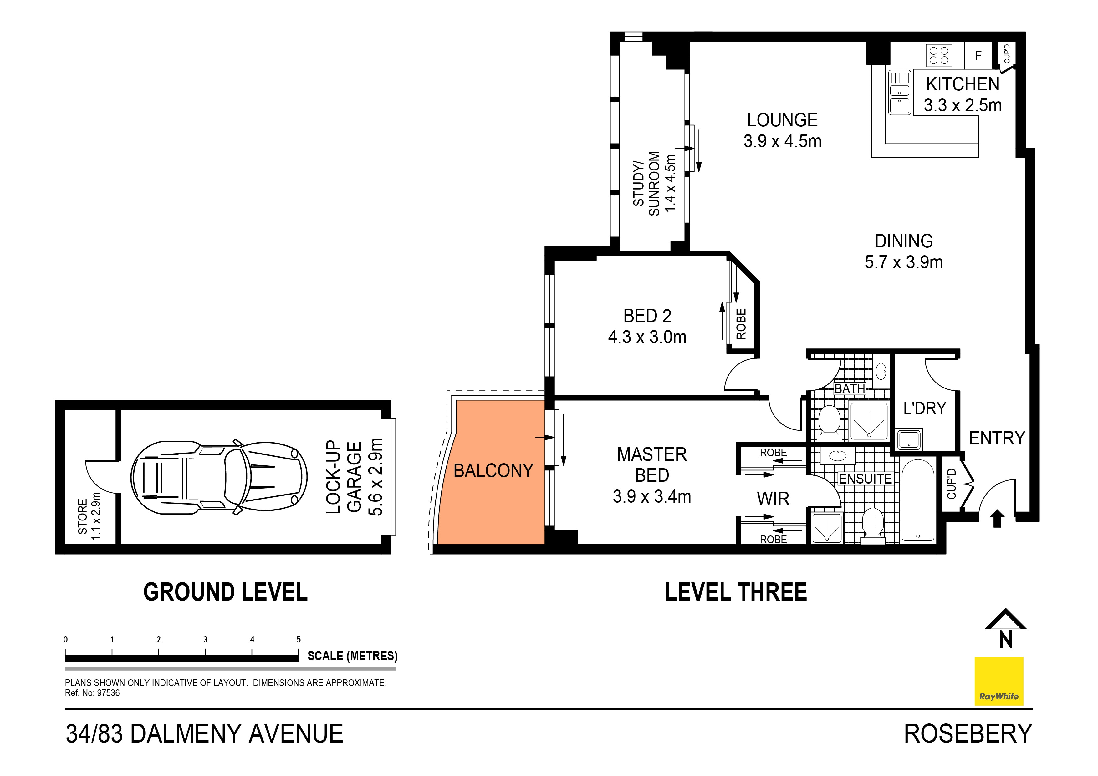
Designed for spacious comfort, this fantastic apartment presents upgraded interiors that strike a note of casual elegance. The floorplan combines the appeal of a generous entertaining area with the utility of a versatile sunroom/study. It's set in Block A of Kimberly Estate, well-known for its great facilities and easy city access. Nearby you'll find The Cannery and world-class recreational facilities at Gunyama Park & Aquatic Centre, while Green Square Station is within walking distance.
- Generously sized living & dining areas
- Refreshed kitchen with Bosch appliances
- Two bathrooms + separate laundry room
- Stylish master with decorative wallpaper
- Private balcony & ensuite with bathtub
- Air con, lift access, lock up garage & storage cage
- Access to gyms, pools/spas & squash court
- Situated near the park & grocery store
- Walk to The Cannery's cafes & restaurants


