Exquisite, Impeccably Designed Brand New Family Residence
Auction - Saturday 18th November 2023
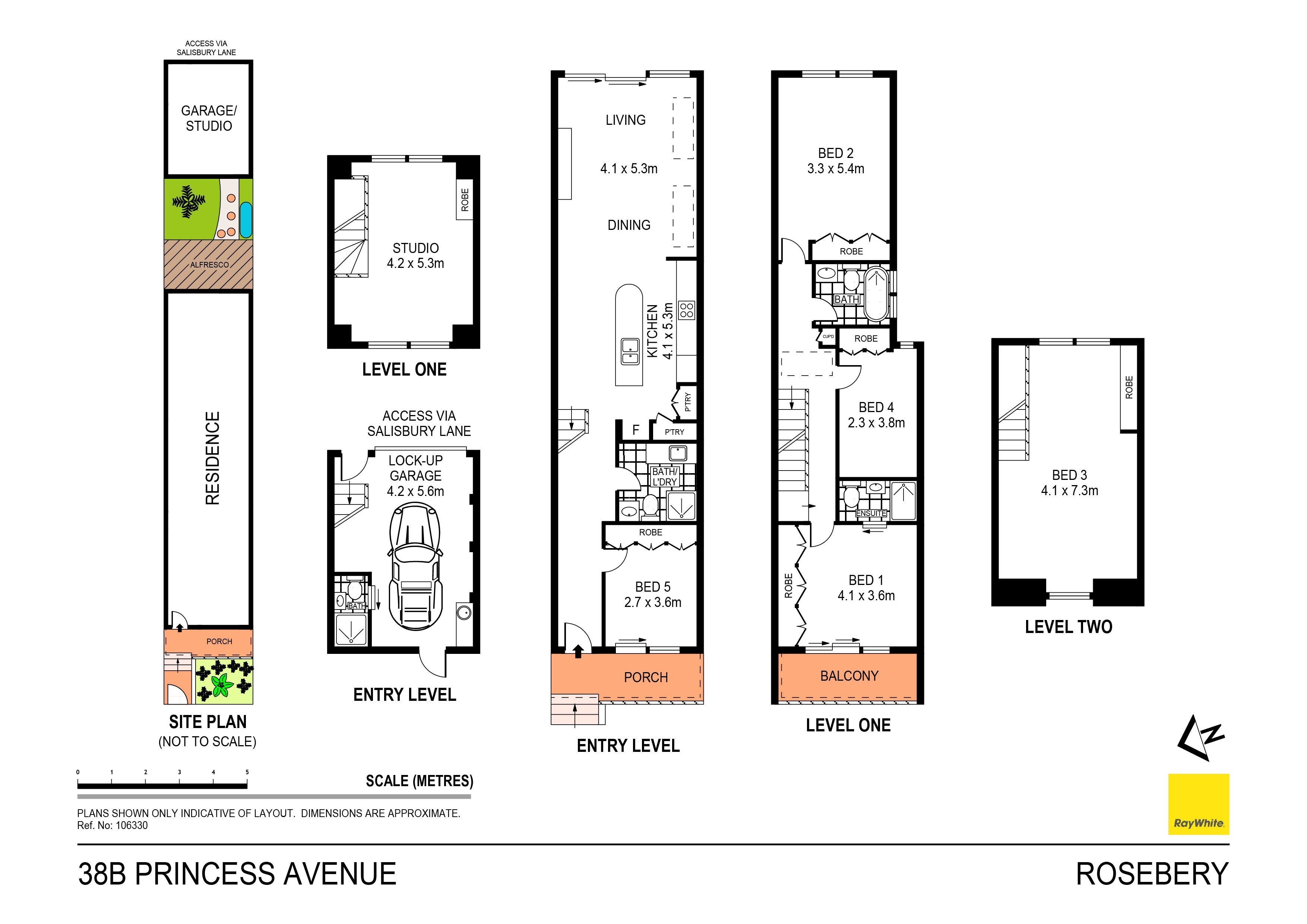
Situated a mere four kilometers from the city center, this extraordinary new duplex redefines modern living, seamlessly blending sophistication and functionality. It features a flexible family-oriented design with convenient lane access to the studio. Inside, you'll discover a captivating blend of spaciousness, natural illumination, and high-end materials, highlighted by the tactile charm of exposed brick and opulent cabinetry. Spanning three luxurious levels, this property offers an array of outdoor sanctuaries, ample storage solutions, and split-system air conditioning to ensure year-round comfort. Experience the epitome of cosmopolitan living, with easy access to city-bound transportation, picturesque local parks, and the renowned Cannery and Grounds of Alexandria. Welcome to a lifestyle that transcends ordinary living.
- Brand-new Torrens Title duplex by Makki Constructions
- Entertainers' kitchen with sleek Smeg appl.
- Private courtgarden with terrace for BBQ
- Built-in robes, air con panel in each bedroom
- Custom-crafted wardrobes & stylish shelves
- Elevated master suite includes private balcony
- Over-sized top-tier bedroom/extra living area
- Bathrooms have fluted basins, Parisi tapware
- CCTV, video intercom, LED lighting accents
- 400m to The Cannery, 850m walk to trains
- Near Sweetacres Park, Turruwul Park + tennis














