1 of 22
Luxurious Torrens Title Haven of Premium Modern Craft
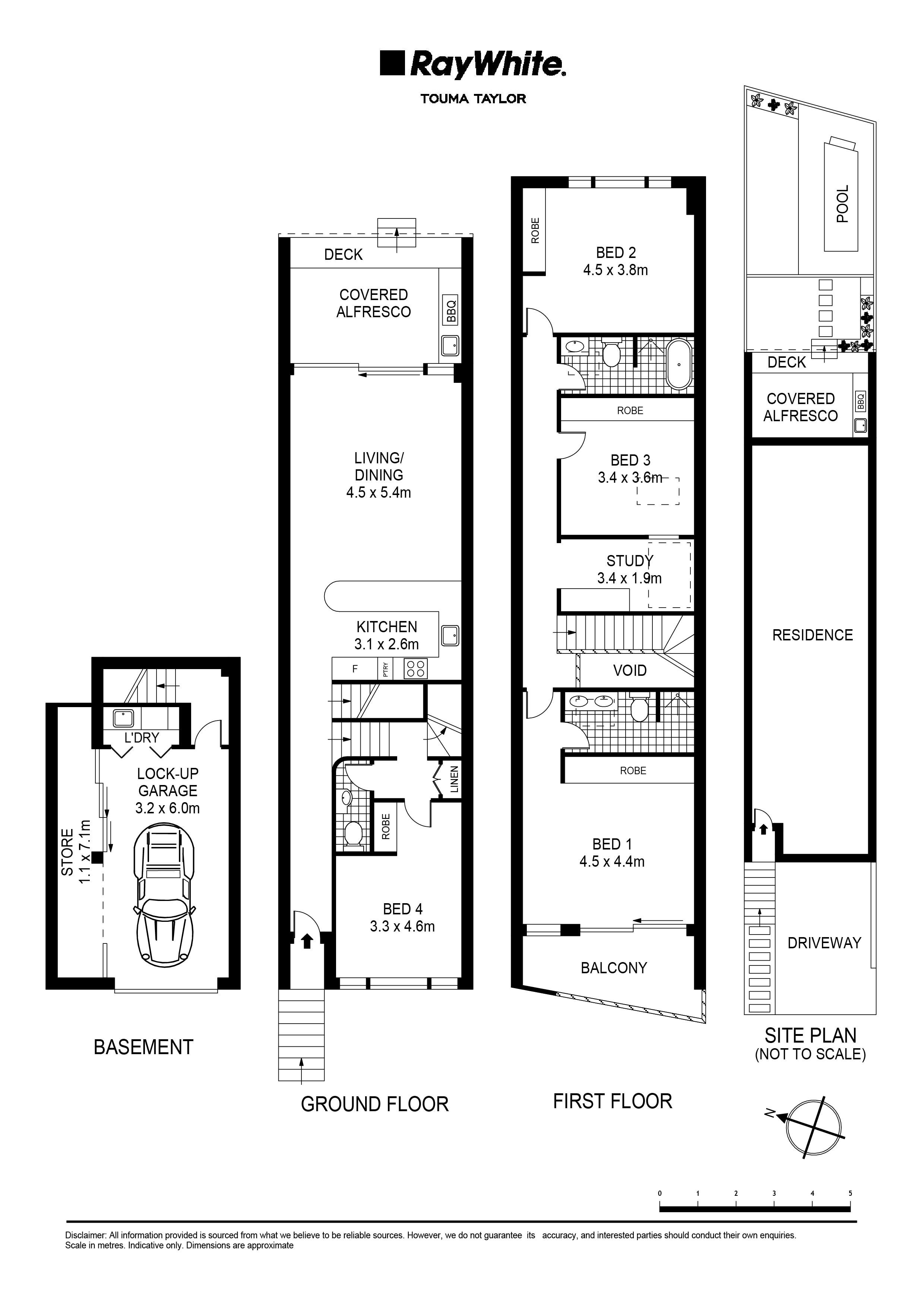
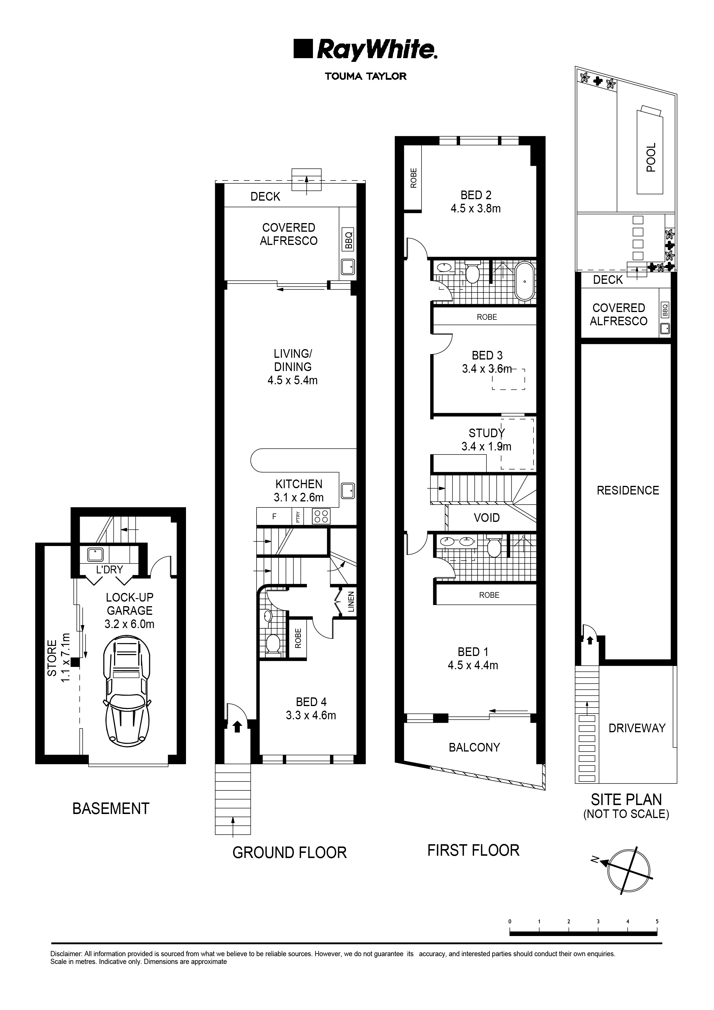
A brilliant exhibition of architectural excellence and designer artistry, this brand-new Torrens Title home demonstrates the upper echelon of contemporary living near Maroubra Beach with superb indoor and outdoor entertaining credentials, poolside relaxation and impressive proportions. It is placed footsteps from the idyllically scenery of Coral Sea Park, a stroll from Maroubra Village and close to the beach. This is an exceptional offering in a perfect family setting, assuring a lifestyle of luxury, relaxation and convenience.
- High ceilings, timber floors, designer fixtures
- Stunning double-height sandstone feature wall
- Alfresco dining area, Matador BBQ, bar fridge
- Vibrant rear garden & lawn, tiled plunge pool
- Stone surfaces, Smeg gas cooktop, dishwasher
- Oversized bedrooms with BIRs & a skylit study
- 2 thoughtfully crafted bathrooms & a guest WC
- Family bathtub & master ensuite double basins
- Zoned ducted air conditioning, video intercom
- Auto single garage has internal access, storage
- Near Coral Sea Park playground & sports fields
- 600m to Maroubra Village for grocers & eateries
- 1.2km to Maroubra Beach & beachfront dining








































