1 of 14
Spacious Haven with Vibrant Garden Outlooks
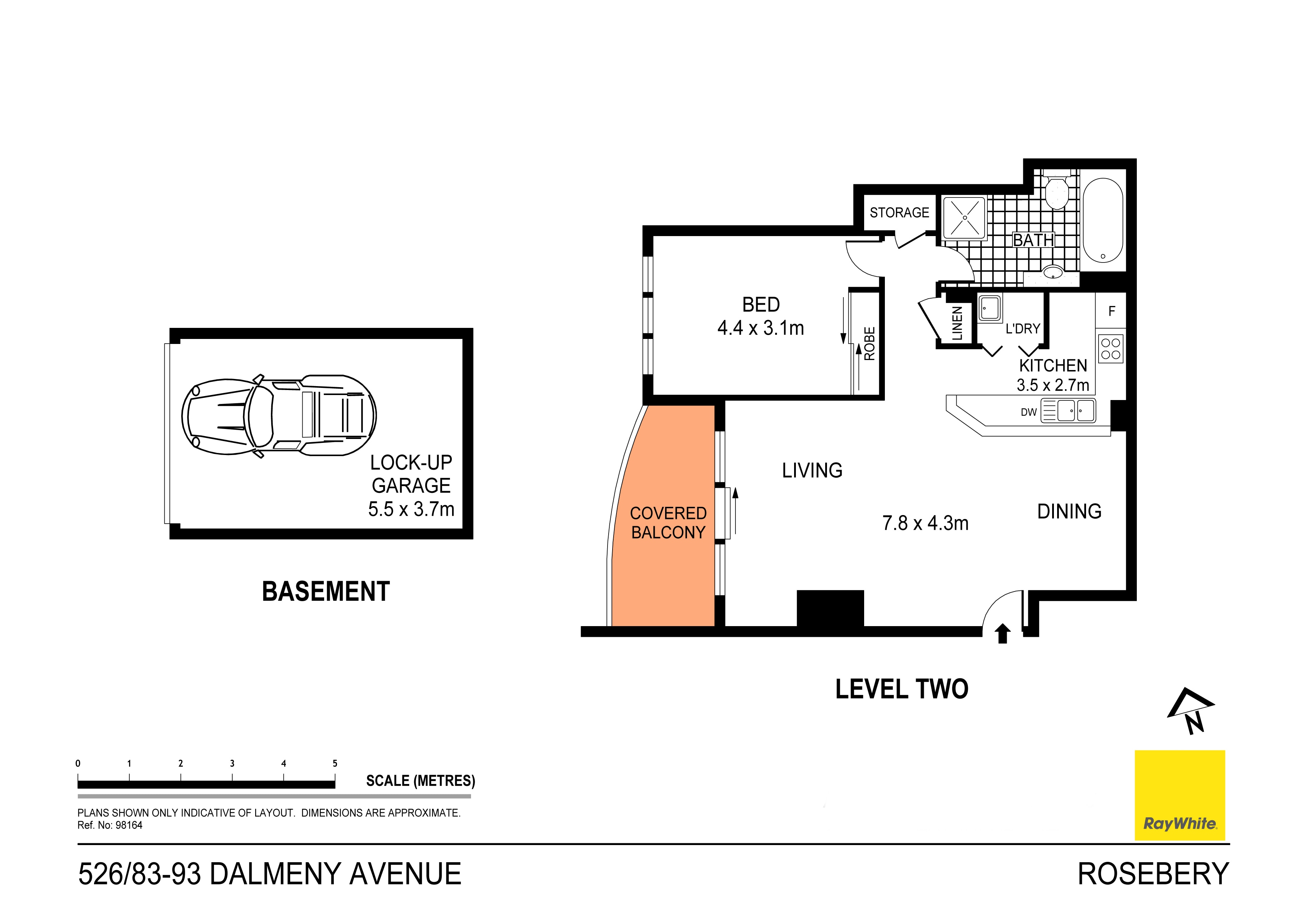
Revealing a spacious floorplan promoting a high measure of comfort, this fantastic apartment captures a tranquil position deep within 'Kimberley Estate'. This is one of the larger one-bedroom residences available on the market, offering 73sqm featuring expansive open plan living space. This wonderful home delivers genuine lifestyle appeal with a view over landscaped gardens and access to swimming pools, the gym and tennis courts. Position yourself within easy walking distance of Gunyama Park Aquatic & Leisure Centre, The Cannery and Green Square Station, while only minutes from the CBD.
- Great entertainer with spacious living/dining
- Large balcony set over landscaped gardens
- Granite kitchen, gas cooktop, dishwasher
- King-sized bedroom with mirrored built-ins
- Full bathroom with separate bath & shower
- Discreet internal laundry, reverse-cycle AC
- Intercom, lock-up garage in the basement
- 18 minutes' walk to Green Square Station


