1 of 17
Fantastic Home with Approved DA in Prized Neighbourhood Alcove
Auction - Saturday, 4th of March
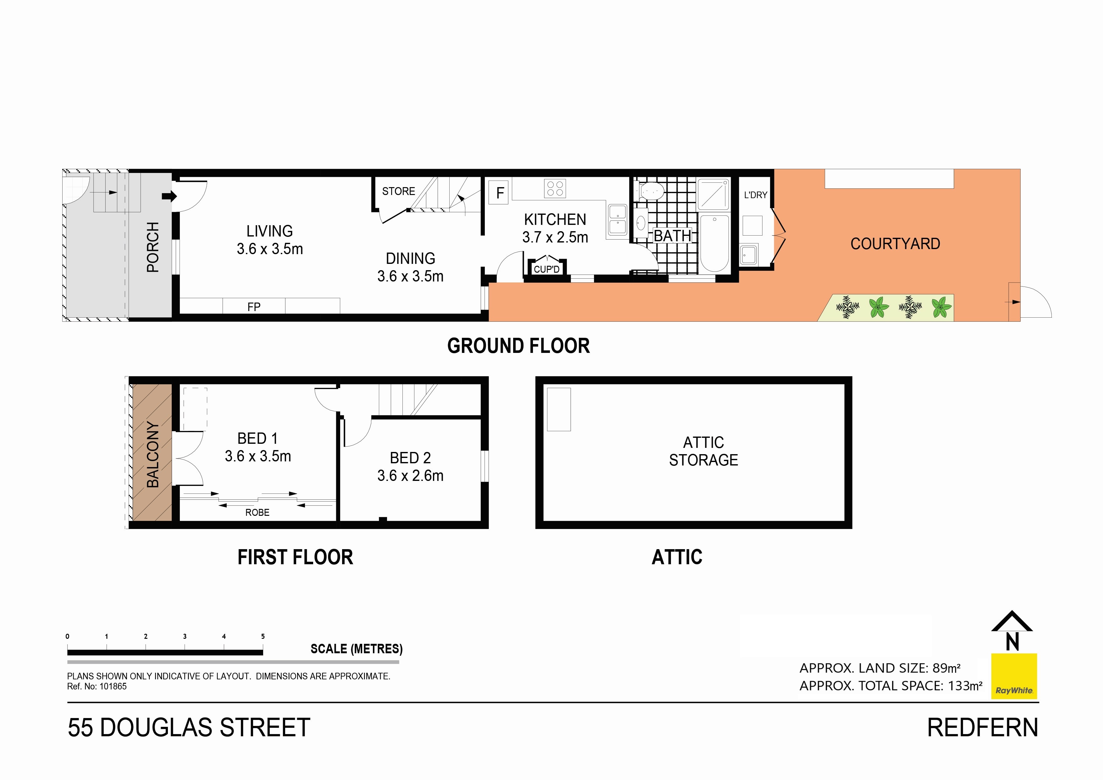
Enjoy an effortless transition into the local home market with this immaculate terrace of timeless character, quality and approved DA, set on a substantial block of 89sqm. It shapes up as a readymade haven for professionals and couples who are keen to become a part of this tight-knit neighbourhood with friendly neighbours, while enjoying close proximity to Surry Hills and the city. Parks, cafes, supermarkets, funky small bars, Redfern Station and the upcoming Waterloo Metro are all placed within easy walking distance.
- Approved DA to extend upstairs & open layout
- Period-style living area with ornate fireplace
- Kauri floors downstairs, fresh carpet upstairs
- Gourmet gas kitchen with timber benchtops
- Refreshed bathroom, separate bath & shower
- Front patio, balcony & private rear courtyard
- Visit local faves Breadfern, Bart Jr, & Misfits
- Short stroll from Danks Street's gourmet treats
- Easy walk from Waterloo Metro, opens 2024


































































