57 Wellington Street, Waterloo
- 2 Bed
- |
- 1 Bath
Guide $1,400,000
Land Size: 137m²
Auction
Inspection times
Download PDF
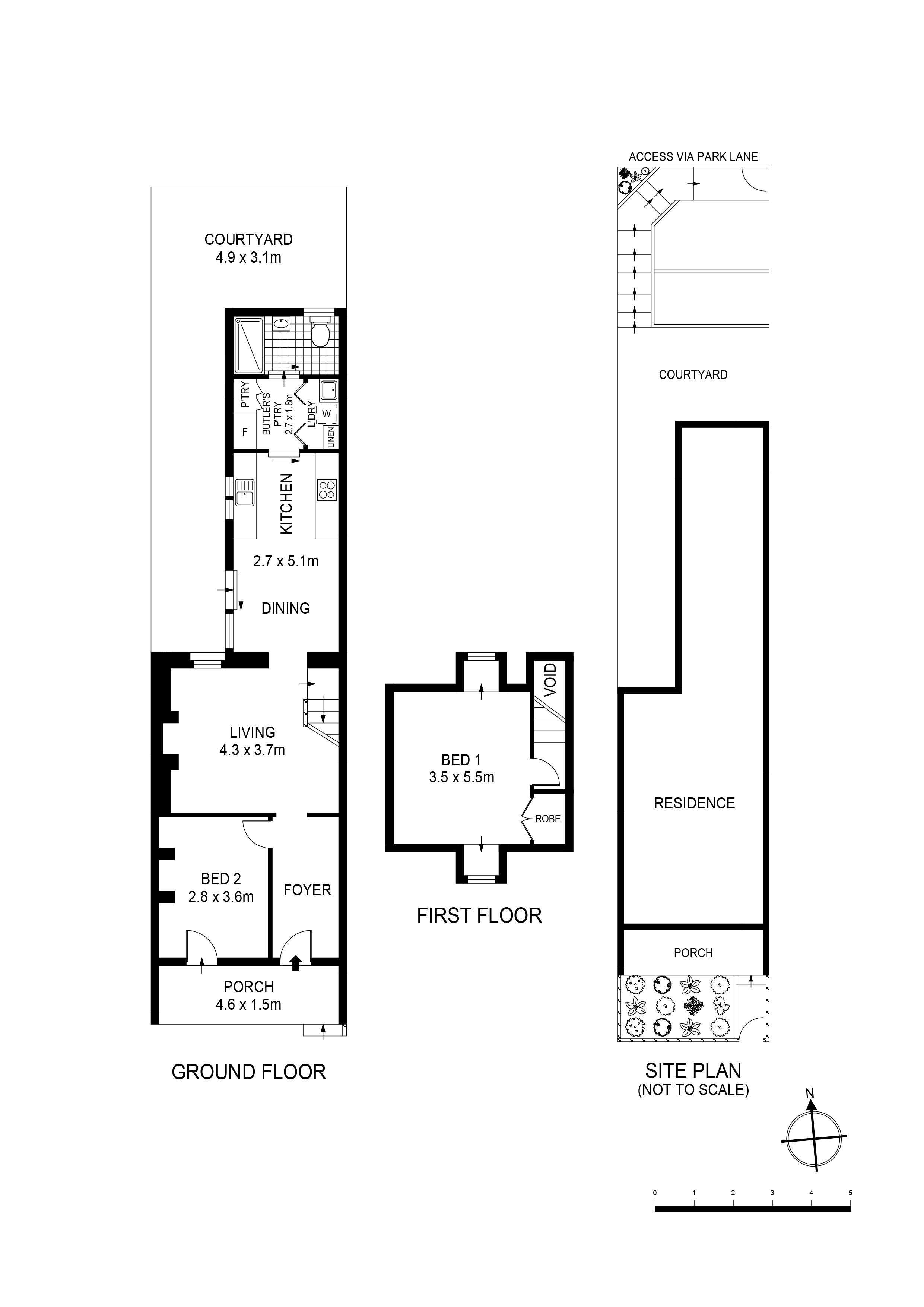
BrochurePicturesque home with idyllic north-rear courtgarden and rear lane access
Auction Saturday 28th March
A fantastic choice for relaxed city fringe living, this brilliant home combines comfort and style with the vitality of a sun-drenched outdoor setting. It is orientated north to rear, delivering a sleek courtyard with lawn terraces and access from the rear allowing for a 5m wide car entry STCA. Interiors present cool contemporary tones, showcasing an impeccable kitchen / dining area and an attractive bathroom but leaving plenty of future growth to the prospective new owner. Waterloo Metro is only 600m from your doorstep, while IGA grocers, Redfern dining and South Eveleigh's arts and foodie precinct are also easy to access by foot.
This terrace appeals equally to investors and home seekers looking for that sun-drenched outdoor area, an easy transition and close proximity to city transport links.
- Interiors are freshly painted to an immaculate finish
- Upgraded engineered floor in kitchen / dining area
- Front bedroom / study with its own access point
- Renovated bathroom with a lovely patterned floor
- Gas instant hot water system, gas heating bayonet
- Pet-owners can stroll to Waterloo & Redfern Parks
- Vibrant hub of shops & eateries along Botany Rd
- Growth location boosted by $960 mil Metro Quarter
- 5m Wide Rear lane access for Parking STCA
- Precedent for future growth on the street
- In the heart of Sydney's next face lift

















