1 of 14
Contemporary Haven of Comfort & Privacy
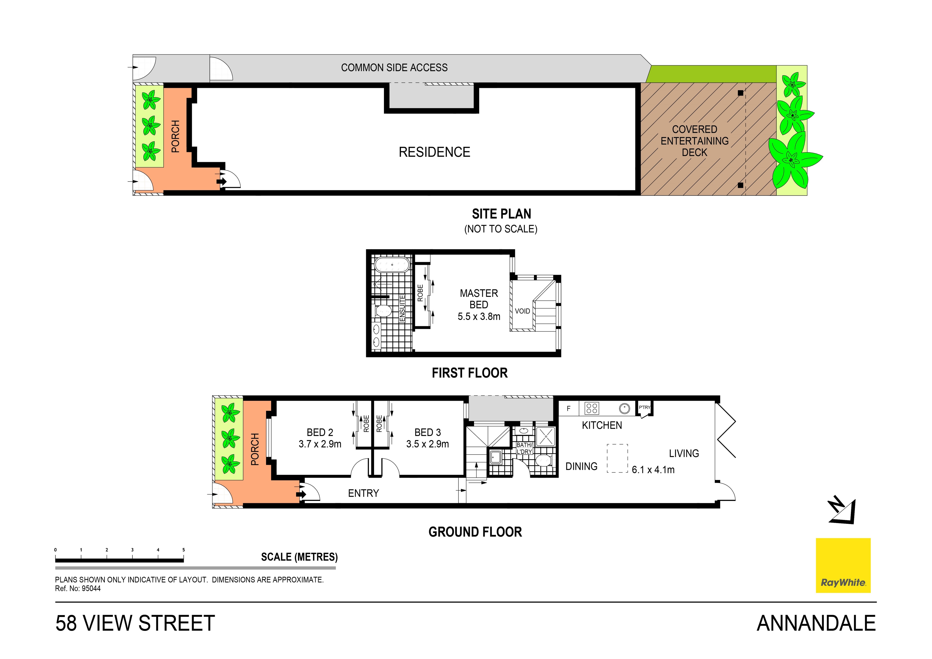
Shaped from clean lines and quality fixtures, this fantastic home delivers a premium level of comfort with impeccable style and finish. An early note of nostalgia in its period frontage is superseded by modern trends, with bi-fold doors offering seamless continuity between the internal living space and the private outdoor setting. Accessed by a stylish glazed staircase, the upper bedroom suite is perfectly rendered to deliver a peaceful night's sleep before waking to leafy outlooks. Just six kilometers from the city, this is an enviable location to call home, close to Hinsby Park, Annandale North Public School and excellent café and dining options.
- Immaculate white walls, dark-stained flrs
- Stone kitchen with Delonghi appliances
- Bedrooms equipped with built-in robes
- Bright/airy upper level with glass louvres
- Stylish tiled bathrooms, ensuite has bath
- Gas bayonet, air con on both levels
- Just 120m from park & Cornersmith Café
















