1 of 14
Light Filled Home Spanning Three Levels
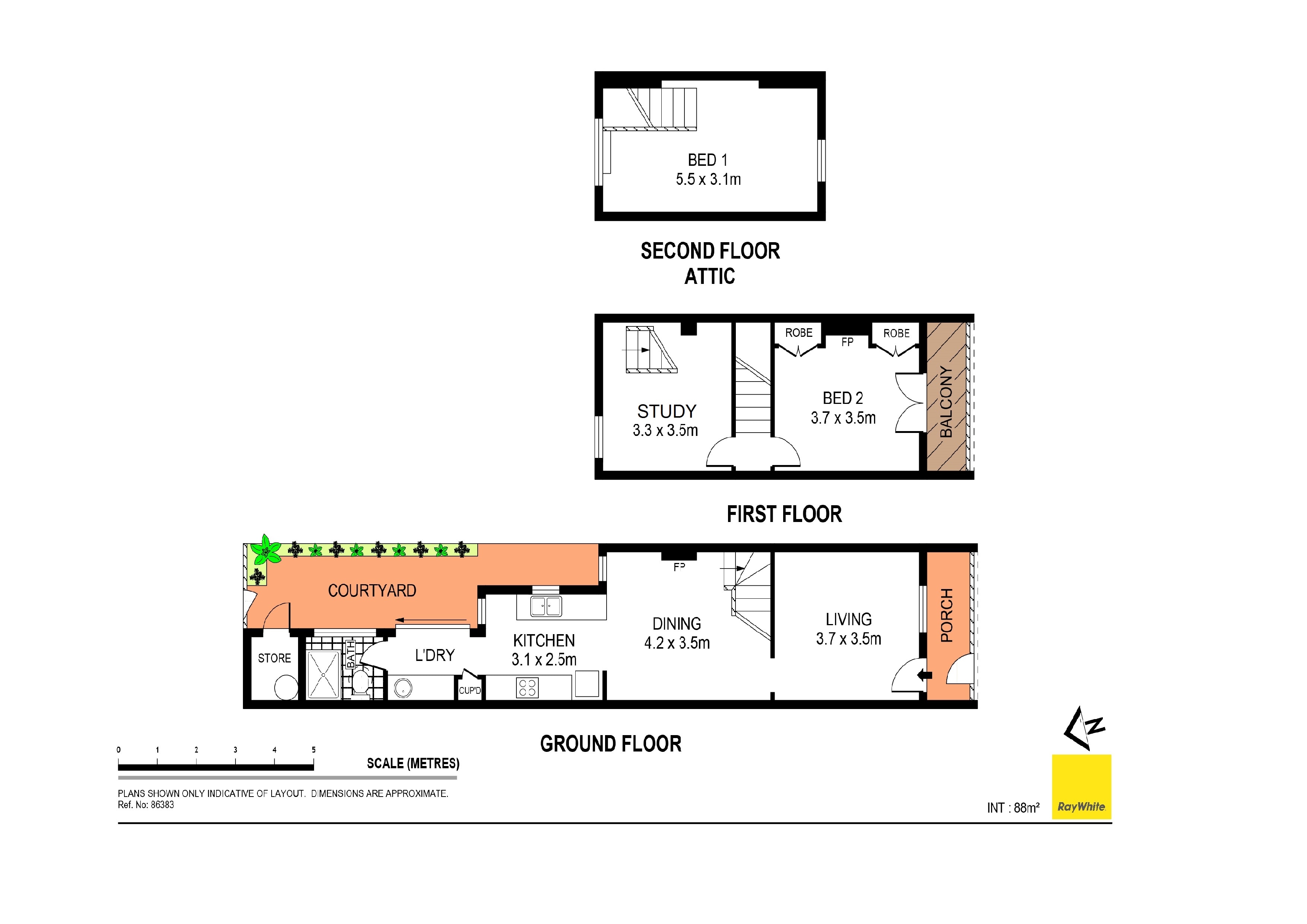
Enhanced by clever design choices, this bright home delivers a peaceful lifestyle situated for effortless connection to the exciting upcoming shopping village located nearby. North facing rear invites optimum light into all levels of the home and washes the outdoor living space in sunshine. Exhibiting period details and a modern attic bedroom, this home offers an ideal layout of space and substance for professionals and young families. It is placed on the doorstep of the dynamic restaurant/bar scenes of Redfern and Surry Hills, while offering easy transport options into the city.
- Light-filled entertainer, dedicated living/dining rooms
- Modern kitchen with quality s/steel appliances
- Neat rear courtyard bathed in north east sunshine
- Updated interiors with high ceilings & timber floors
- Bright attic bedroom also appeals as a home office
- Block provides easy rear pedestrian access to shops
- Short walk to Crown St amenities & Surry Hills Light Rail
















