Versatile Dual Income Terrace in Vibrant Bourke Street Pocket
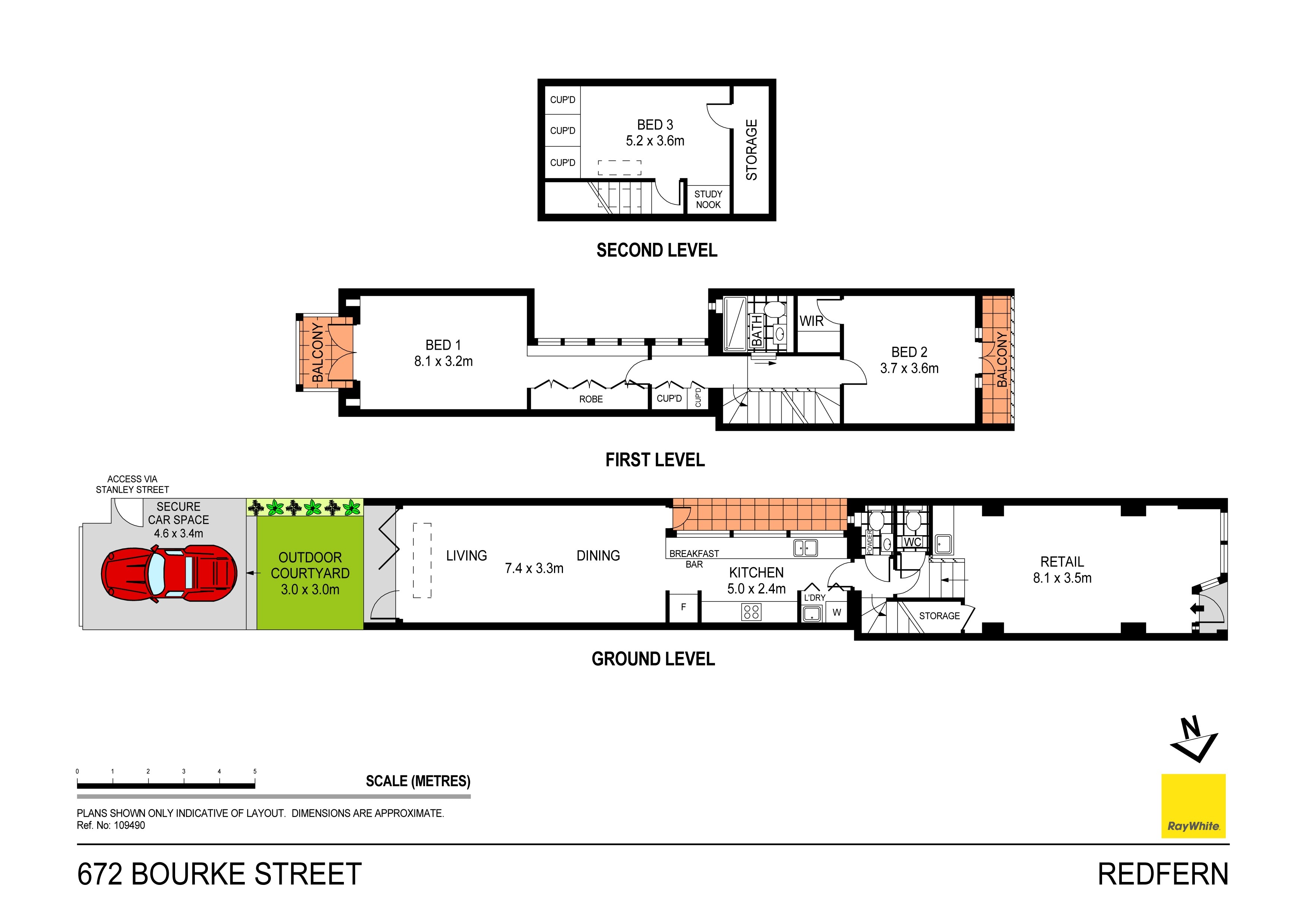
Holding extraordinary appeal for investors and owner-occupiers alike in a buzzing Bourke Street pocket, this zoned mixed use (MU1) property presents boundless potential and possibilities for numerous business, commercial and residential endeavours. Occupying a substantial 120sqm block with rear lane access to secure parking, it currently comprises a successful business with its own entrance at the street level attracting excellent foot traffic. Also boasting a great investment with a healthy business currently leasing a 32sqm retail space at the front of the property and based off the $775pw rental income, this allows for roughly $400k extra borrowing power. To the rear is a tri-level three-bedroom residence offering tastefully renovated interiors, quality finishes and an abundance of natural light. Explore the potential to reside in the main property and receive extra passive income from the lower-level business or recreate/renovate one outstanding urban residence (STCA). It is exceptionally located within footsteps of village shops, boutiques and cafés, buses, Crown Street, the upcoming TOGA Development and Moore Park.
- Tri-level designer terrace bathed in natural light
- Open living/dining enjoys seamless outdoor flow
- East facing sun washed courtyard for entertaining
- Sleek stone kitchen, Smeg gas cooktop, dishwasher
- Well-proportioned bedrooms with built-in wardrobes
- Stylish bathroom, powder room, concealed laundry
- Front/rear beds enjoy access to breezy balconies
- Extensive custom storage, upper-level loft bedroom
- Polished concrete floors on lower level, skylights
- Convenient rear lane access to off-street parking
- Successful business with kitchenette and bathroom
- Outstanding investment with strong rental return
- Reside in main property/receive passive income
- Recreate one outstanding urban sanctuary (STCA)
























