Iconic Landmark Cafe with Upstairs Full Floor Residence & Parking
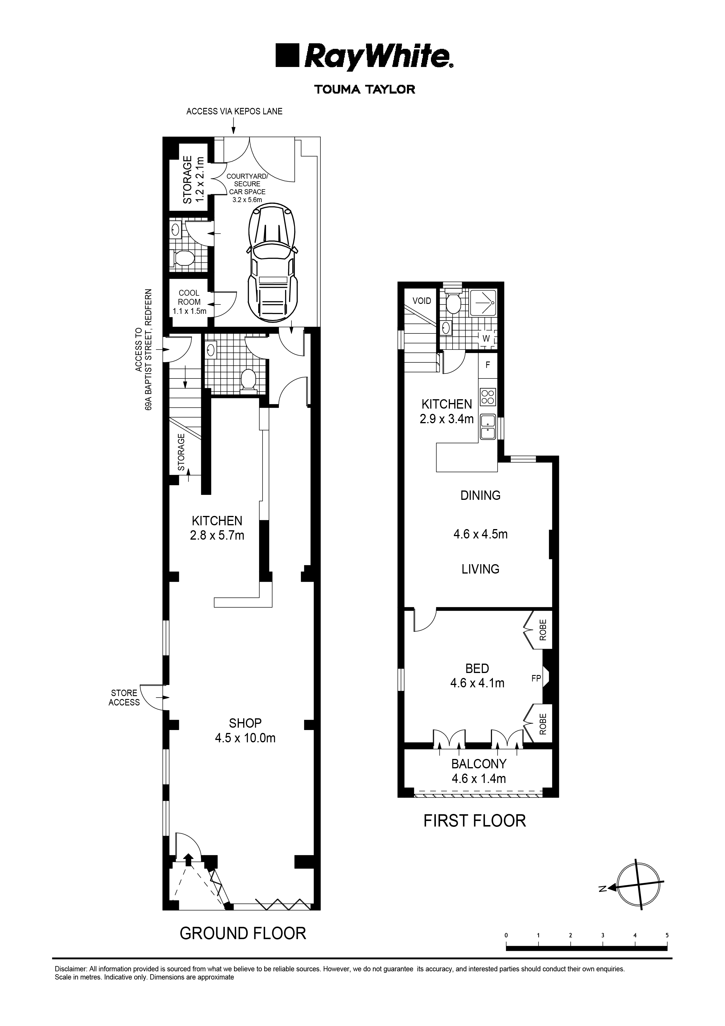
A prime offering exists in a sought-after East Redfern address, this tightly-held property delivers an exceptional dual income opportunity, with a strong commercial presence below and a beautifully renovated residence above. With three prominent street frontages, the ground floor is home to the landmark, long established café 'First Drop' circa 2003, with a commercial kitchen and a commanding presence that maximises exposure and foot traffic. Above, the one-bedroom apartment reveals generous, light filled interiors with a combined living/dining area enhanced by polished timber floorboards and high ceilings. There is a sleek kitchen with quality appliances, while the well-sized bedroom is appointed with built-in wardrobes and French doors opening to a full-width undercover balcony.
- Separate entrance to stylish renovated apartment
- Wonderfully spacious w/ combined living/dining
- Sleek kitchen, b/bar and quality appliances
- Well-sized bedroom w/ floor-to-ceiling BIR
- French doors open to full-width covered balcony
- Polished timber/tiled floors, high ceilings
- Split-cycle a/c, preserved fireplace in bedroom
- Internal laundry, n/facing & bathed in sunshine
- Iconic café `First Drop' with great foot traffic
- Established for 23 years w/ strong rental return
- Full commercial kitchen, wraparound awning
- Rear lane access to secure off-street parking
- Stroll to Surry Hills Village, Coles, Harris Farm
- Walk to celebrated dining spots and wine bars
- Stroll to the light rail, Crown Street, Moore Park




































