1 of 24
Redfern RECORD PRICE - Sold by Charles Touma
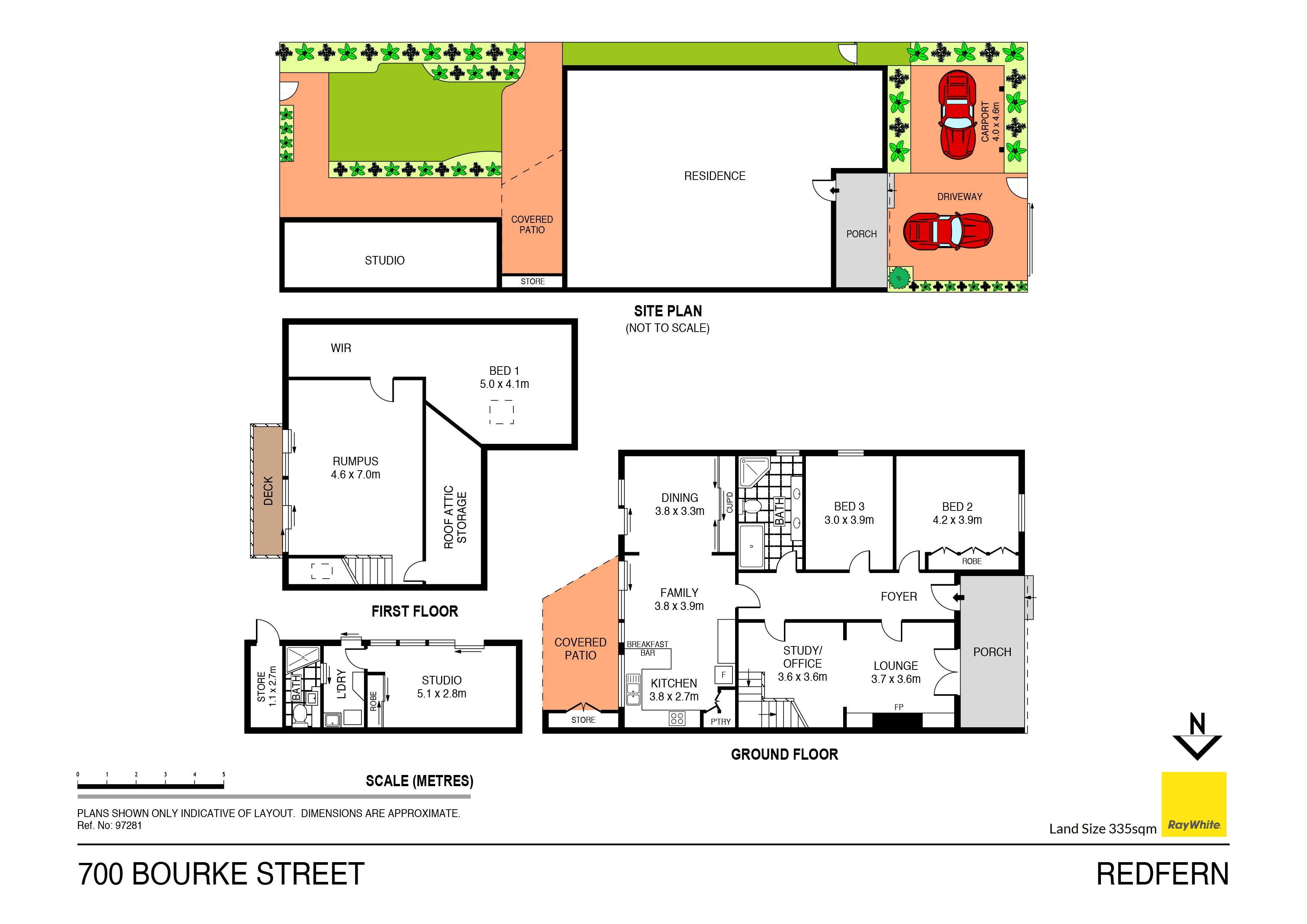
Coveting its privacy and serenity behind a high fence line, 700 Bourke Street is a trophy home that combines a freestanding family residence with a garden studio and multiple onsite parking. It's carefully upgraded to exceptional standards, preserving the timeless character and warmth of a late-Victorian homestead. This is an extremely rare market offering, where a high-calibre family home of this size has realised its full potential in this prized Redfern East pocket. Falling within the Inner Sydney High School catchment, it's located 150m from Cleveland Street and less than 10 minutes from the city.
- Reveals elegant façade with paved courtyard
- Very private & sunny garden with terrace
- Preserves kauri floorboards & cedar finishes
- Main home has multiple living areas + study
- High ceilings, air con, fireplace, solar panels
- Immaculate kitchen, premium appliances
- Onsite parking for 2-3 cars with electric gate
- Studio benefits from pedestrian lane access
- Footsteps from St Jude Café & Little Eve
- Stroll to Surry Hills' chic bars & restaurants
- Near upcoming Surry Hills Shopping Centre
Tranquil Haven on Rare 335sqm Block with Multiple Car Spaces



















