1 of 16
North-Rear Terrace with DA Approved Plans to Expand
Auction - 20th of May at 9am On Site
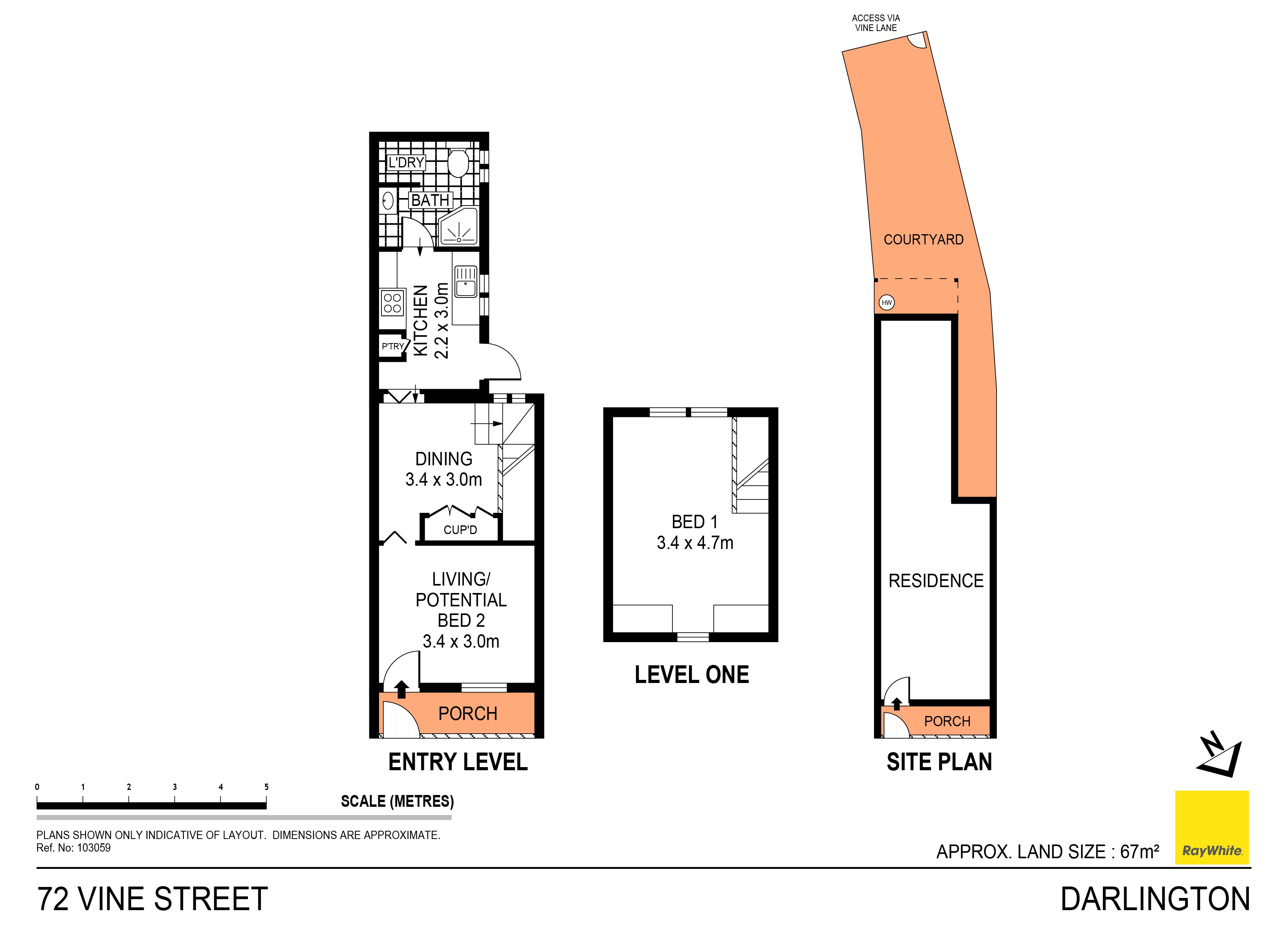
A sense of versatility is apparent throughout this endearing home, perfectly placed to offer Vine Street Playground at the front and pedestrian access at the rear. It's designed for low-maintenance living, creating an ideal home environment for busy professionals in a quiet street. Current approved plans offer the opportunity to transform the home into a two-bedroom residence, while the potential remains to expand the vision into a three-bedroom home (STCA), as precedented by a neighbour a few doors down. This superb home is a great fit for first-time buyers and investors, capitalising on an ultra-connected lifestyle within walking distance of the city.
- Practical layout, separate living & dining
- Diligent updates, impeccable presentation
- Private courtyard retreat splashed in sunshine
- Neat kitchen has scope to upgrade/add value
- Upstairs bedroom with light from both sides
- Downstairs combined bathroom/laundry
- Approval for 2 Bed + add rear roller shutter
- Vine Street children's playground is opposite
- Easy walk to Brickfields & other great cafes


















