1 of 12
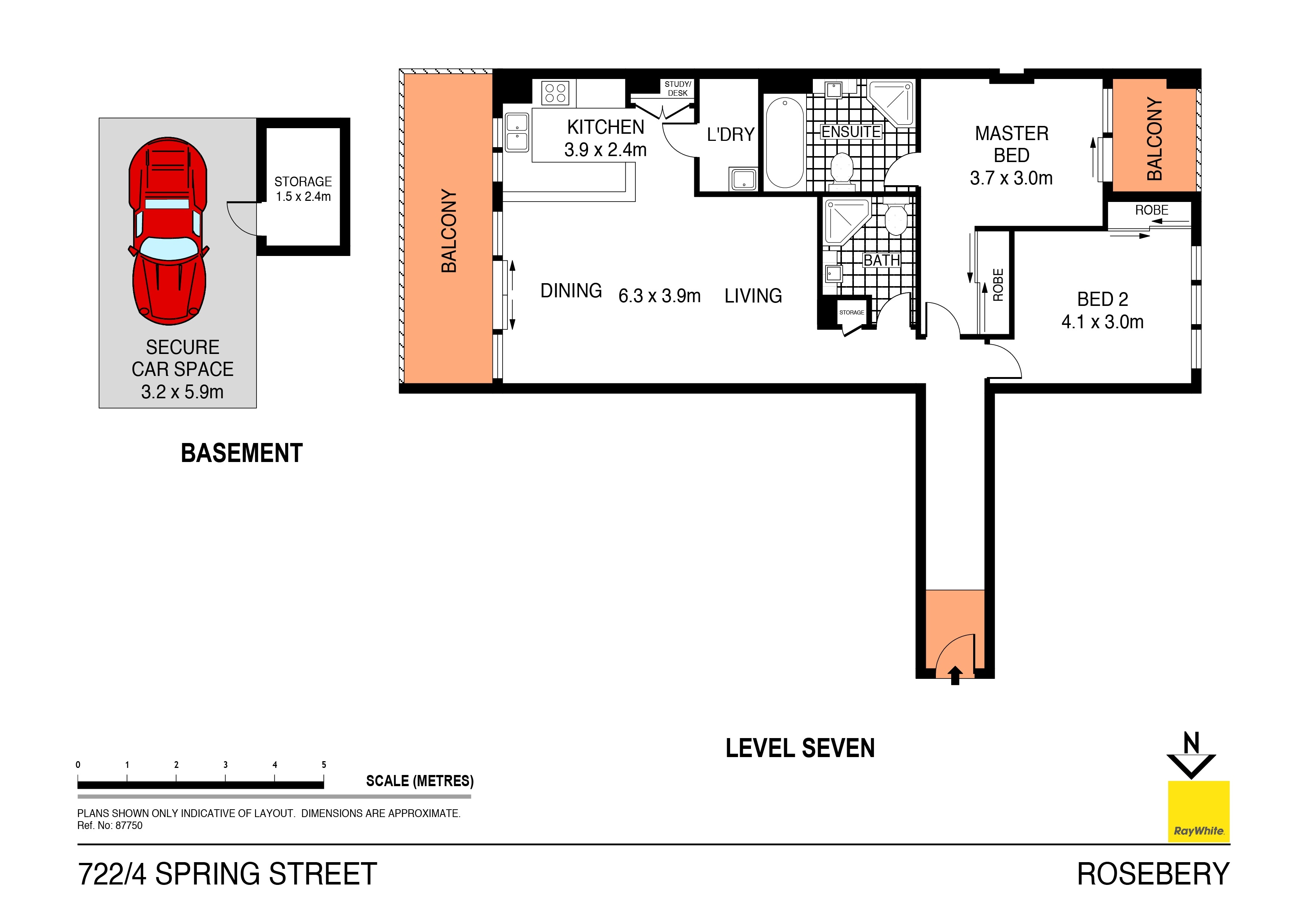
722/4 Spring Street, Rosebery
- 2 Bed
- |
- 2 Bath
- |
- 1 Car
Sold for $917,500
Land Size: 101m²
Download PDF
BrochureContemporary Lifestyle Haven In The Prized ' Valentino Place'
Located in the exclusive 'Valentino Place', this recently refreshed apartment provides an idyllic lifestyle haven of contemporary comfort and quality. Cleverly designed to maximise space and natural light, it features a superb open plan living/dining area extending to a full-width undercover balcony perfect for entertaining. The sleek CaesarStone kitchen boasts quality stainless steel gas appliances, while the master bedroom with full sized ensuite opens to a second sunlit balcony. Complete with access to the complex indoor pool and gymnasium, it is positioned a stroll to the Cannery and Gunyama Park Aquatic Centre, shops, buzzing eateries and all the area has to offer.
- Wonderfully spacious, bathed in light
- Freshly painted, new carpet and blinds
- Modern kitchen, concealed study nook
- A/c, secure car space, storage cage
- Beautiful landscaped boulevards/gardens
- 24 hour building manager, pool, sauna














