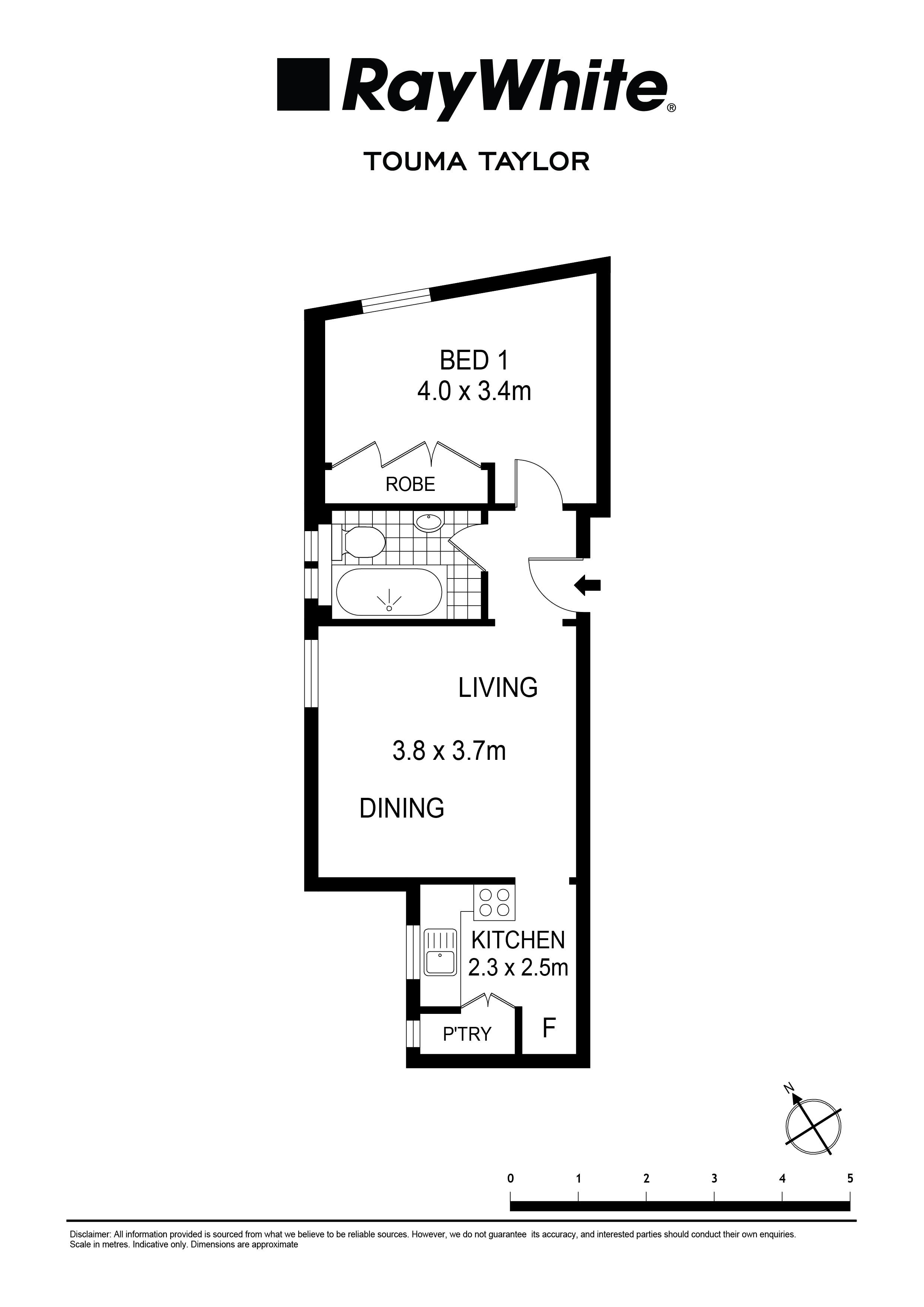
8/44 Bayswater Road, Rushcutters Bay
- 1 Bed
- |
- 1 Bath
Forthcoming Auction
Floor Area: 40m²
Inspection times
Download PDF
BrochureCharming Art Deco Haven in a Coveted Harbourside Pocket
Peacefully tucked within a gracious c1930s building, this beautifully presented one-bedroom plus study apartment offers an idyllic bayside retreat in one of Rushcutters Bay's most desirable tree-lined enclaves. Brimming with timeless Art Deco character, it features elegant proportions, high ceilings and classic sash windows that capture soft natural light throughout. The home reveals a well-configured layout with a welcoming living and dining space, a neat period kitchen and a well-sized bedroom complemented by a versatile adjoining study. Freshly refreshed interiors and thoughtful styling allow for easy immediate living, while offering scope to personalise further if desired. Set mere moments to Rushcutters Bay Park, the harbour foreshore and the vibrant Potts Point dining scene, this ready-made home or investment enjoys unbeatable lifestyle convenience in a blue-chip urban village setting.
- Classic Art Deco security building in a prized bayside address
- Light-filled living and dining space with calming neutral palette
- Neat vintage kitchen with charming original details and good storage
- Immaculate bathroom with full bathtub and chic white tiles
- Elegant high ceilings, picture rails and tasteful updates throughout
- Ideal first home, pied-Ã-terre or strong rental investment
- Stroll to Rushcutters Bay Park, harbour walks & marina cafés
- Walk to Potts Point dining, boutique shopping & Kings Cross station
- Minutes to the CBD with buses and trains at your doorstep














