City fringe lifestyle with views
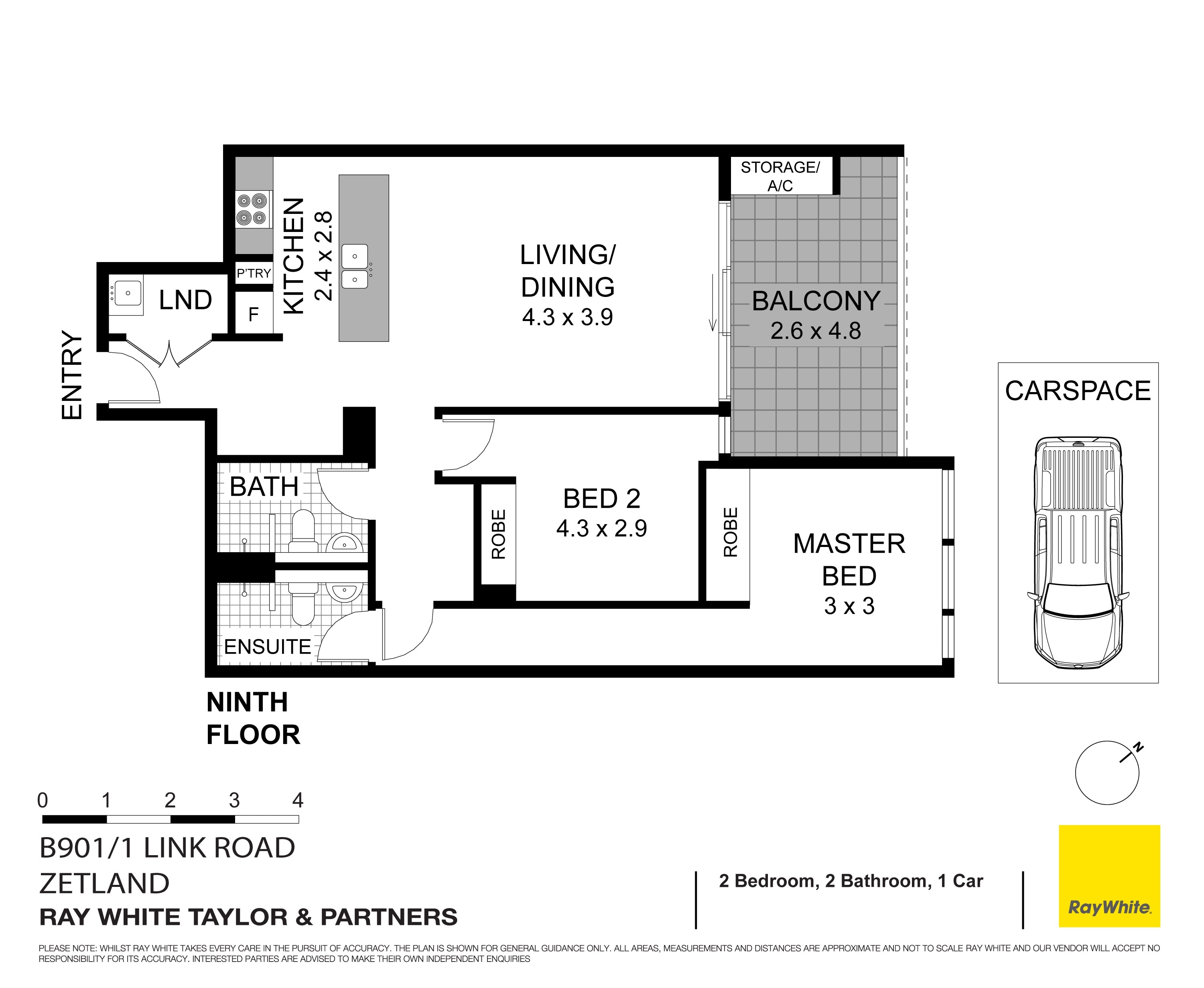
Found within Zetland's much anticipated residential development known as 'Paragon', this north-facing two bedroom apartment is found on the 9th floor and enjoys views across the Eastern Suburbs and Sydney's famous city skyline.
Open plan living + dining which leads to full width balcony
Generous bedrooms with built ins, master with ensuite
Designer kitchen with stone benches w Smeg appliances
Stylish bathrooms, separate laundry equipped with dryer
Air conditioning, designated study nook, secure parking
Secure complex with intercom access, lift, common area
Short walk to Green Square Station, East Village Shops
Easy access to the CBD, UNSW, Kingsford Smith Airport
Found in one of Sydney's more progressive dining pockets
Water $630pa; Council $1,144pa; Strata $1,202pq
Apartment size approximately 86sqm
Inspections will adhere to NSW Govt guidelines
Masks must be worn for the duration of the inspection
Please have ID, use social distancing & stay home if unwell























































