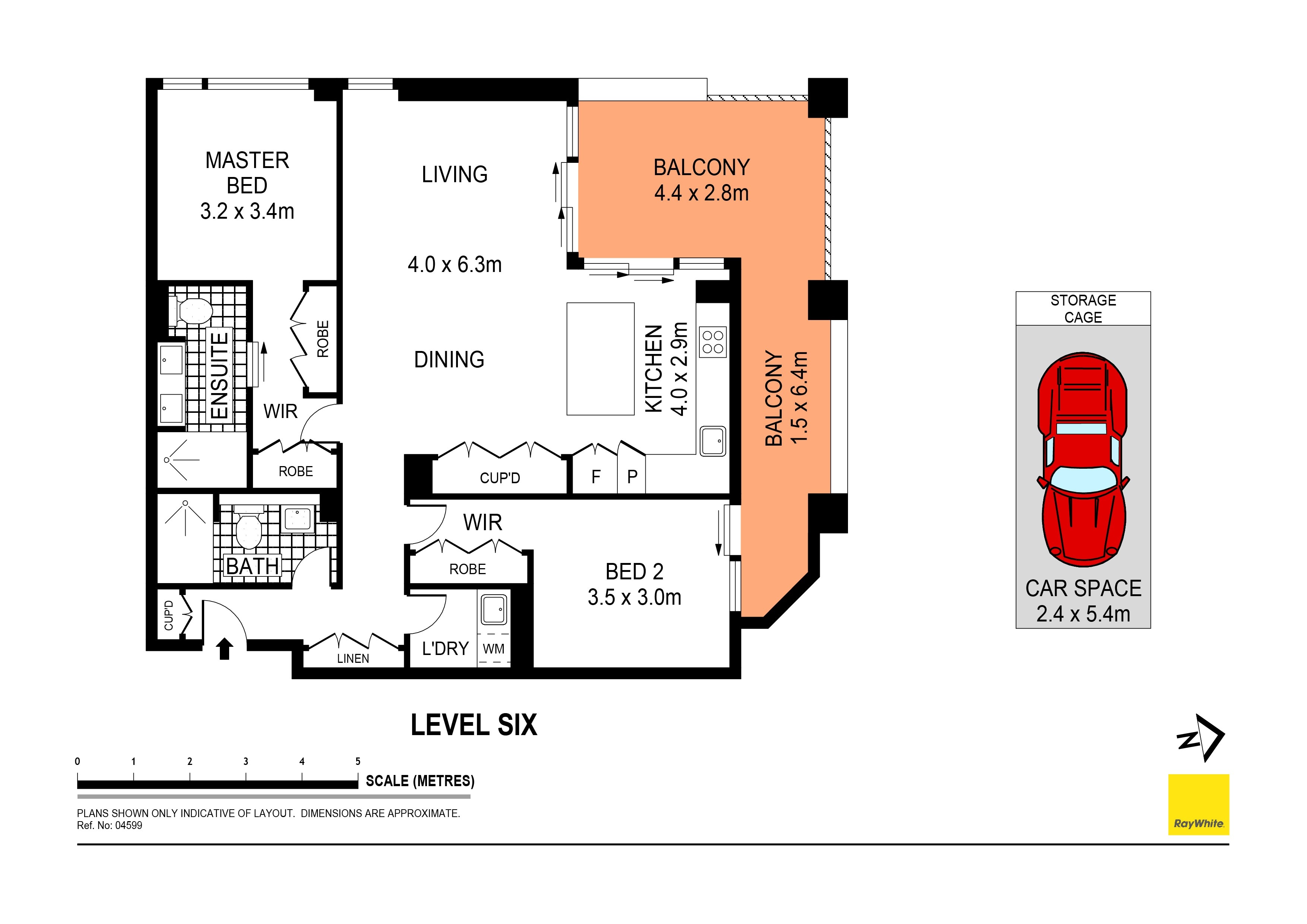
B604/10 Baptist Street, Redfern
- 2 Bed
- |
- 2 Bath
- |
- 1 Car
Sold for $2,350,000
Land Size: 125m²
Download PDF
BrochureLuxurious Lifestyle Sanctuary in Surry Hills Village
Set on the 6th floor of the highly anticipated Surry Hills Village with panoramic district views, this near-new luxury apartment designed by award-winning SJB Architects in collaboration with TOGA delivers the ultimate lifestyle sanctuary in a dynamic urban precinct. Meticulously crafted with high-spec finishes by BKH, it reveals an impressive layout with walls of glass drawing the sunshine in and a select neutral palette with extensive custom joinery and European oak floors. A designer kitchen features an expansive stone island bench, Siemen gas cooktop/oven and a double-width integrated fridge and freezer, while spacious living/dining areas enjoy a seamless flow to a north west facing entertainers' terrace. Step outside and immerse yourself within the vibrant village community with Woolworths, Harris Farm and a wealth of buzzing bars and eateries at your doorstep.
- Chic contemporary design, high-spec finishes by BKH
- Spacious open living/dining, European Oak floors
- Expansive NW facing sun bathed undercover balcony
- Floor-to-ceiling glass doors draw the sunshine in
- Designer kitchen with Siemens gas stove/oven
- Double-width integrated fridge/freezer, dishwasher
- Expansive stone island bench, deep pantry/joinery
- Stunning master suite, walk-in robes, luxe ensuite
- Spacious second bedroom with custom built-in robe
- Ducted a/c, chic bathrooms, USB outlet fitted
- Custom laundry, extensive storage, AV intercom
- Lift to security car space, storage & EV charger
- Coles, Harris Farm, Vintage Cellars & cafés on-site
- Stroll to Crown Street's bars and eateries, light rail












