1 of 9
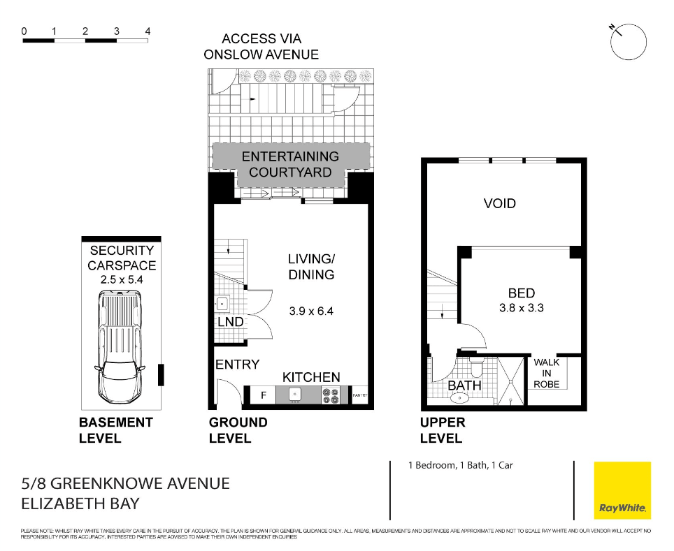
Split level one bedroom apartment in luxury development
Positioned to enjoy the finest aspects of cosmopolitan city living, this chic contemporary apartment ensures an idyllic lifestyle in the landmark 'Manhattan'complex. Cleverly designed and flooded with natural light, it features a striking layout enhanced by double height ceilings and quality finishes. There is a sleek CaesarStone kitchen, while living/dining extends to a sunlit courtyard. Residents enjoy access to the complex first class facilities including a heated pool, gym, steam room and concierge. Complete with secure parking, it is placed a stroll to Macleay Street's dining as well as Rushcutters Bay Park and the harbour foreshore.
- Contemporary dual level design enhanced by soaring double height ceilings
- Spacious open plan living/dining extends to a sunlit entertainers'courtyard
- Sleek CaesarStone kitchen with s/steel gas appliances, integrated fittings
- Upper level bedroom appointed with built-in robe, stylish ensuite bathroom
- Ducted air conditioning, limestone tiled living areas, carpeted upper level
- Resort-style facilities include heated swimming pool, gym, spa, steam room
- Lift access to secure basement car space, Monday-Saturday concierge service
- Rear pedestrian access via Onslow Avenue, footsteps to cafes, Hayes Theatre











