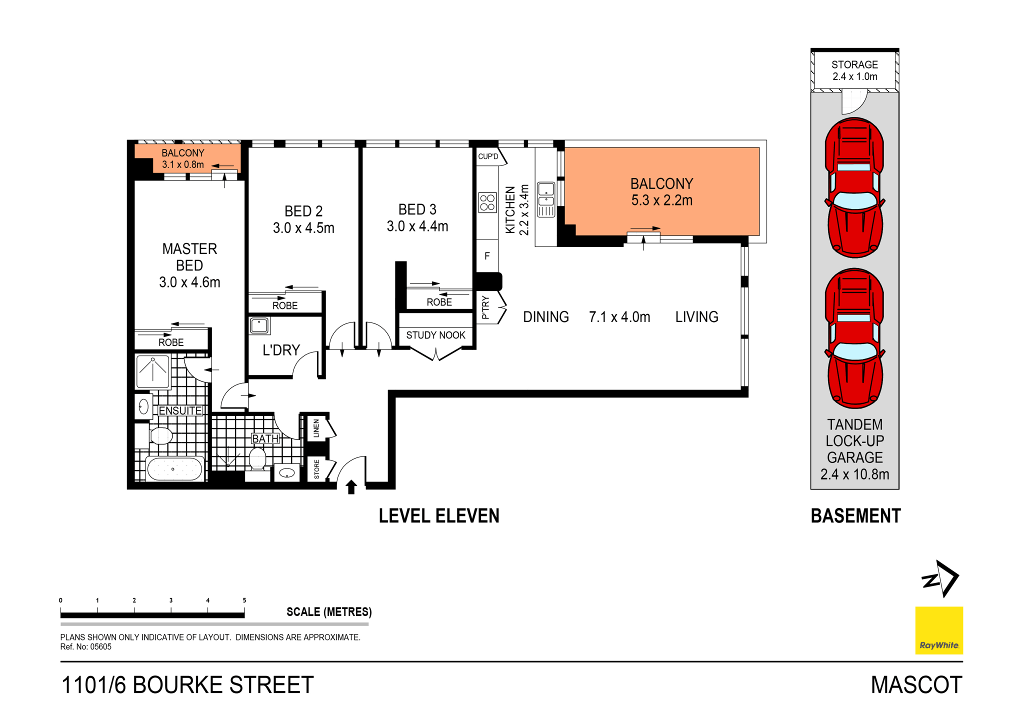
1101/6 Bourke Street, Mascot
- 3 Bed
- |
- 2 Bath
- |
- 2 Car
Sold for $1,350,000
Land Size: 153m²
Floor Area: 123m²
Download PDF
BrochureBreathtaking Sub-Penthouse of Luxury in the 'Spectrum'
Presenting a radiant and picturesque beacon of urban high-rise luxury, this stunning 'Spectrum' sub-penthouse is designed for a premium level of comfort with a north-facing aspect and spectacular city views. Exceptional floor-to-ceiling glazing throughout the entire apartment ensures natural light at all hours, with a brilliant open-plan living and dining area which captures a stunning uninterrupted panorama of the Sydney skyline. Host guests on the terrace in front of this magnificent backdrop, with the high-end kitchen built to entertain and accommodate for gourmet cooking. Enjoy access to an aquatic centre with a heated pool, spa and sauna, a world-class gym as well as sprawling landscaped gardens across the complex, while Mascot Station is only footsteps away for an easy transit into the city centre.
- Picturesque living/dining, seamless outdoor flow
- Smeg kitchen, gas stovetop, integrated dishwasher
- 3 oversized bedrooms with BIRs & vibrant aspects
- Master bedroom with a luxe ensuite & a balcony
- Alluring baths, marble tile floors, ensuite bathtub
- Subtle study nook offers a work-from-home space
- Ducted air con, floor-to-ceiling glazing throughout
- Secure video intercom & on-site building manager
- Large internal laundry, 2 car spaces, storage cage
- Five-star complex amenities assure easy lifestyle
- Footsteps from an abundance of grocers/eateries














