1 of 14
Sophisticated home of premium comfort & taste
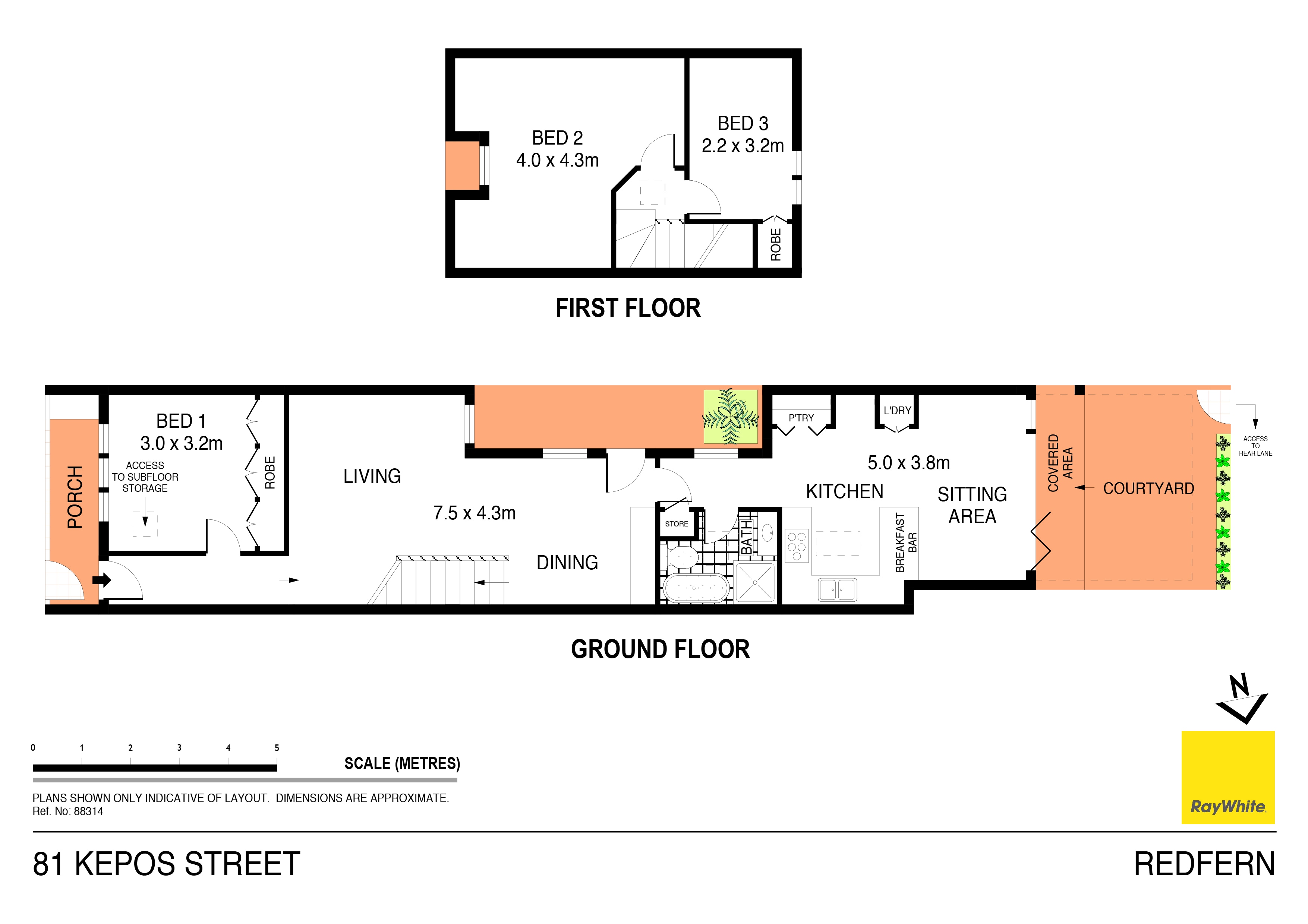
Immersed in the serenity of its end of cul-de-sac setting, this exceptional home has been smartly upgraded into a first-class entertainer. It retains all of the character and warmth of the original terrace, then increases our delight with the stunning bathroom, chef's kitchen and alfresco area. Providing generously-scaled bedrooms, air conditioning and pedestrian access from the rear lane, this home promises refined comfort in a lovely community pocket offering Kepos Street Kitchen at one end, Elizabeth McRea Playground at the other and ample street parking in between.
- Living space features beautiful bespoke cabinetry
- Smartstone kitchen w 2 Bosch ovens & butler's pantry
- Bi-folds open to sunny courtyard offering Vergola awning
- Stunning Carrara bathroom w LED backed mirror
- Bedrooms are well-scaled & provide built-in wardrobes
- AC, gas bayonet, plantation shutters, timber floors
- Set footsteps from gourmet meals at Kepos St Kitchen
- Brief stroll from Danks St Plaza and famed restaurants


















































