1 of 10
Stylish urban living in a prime location
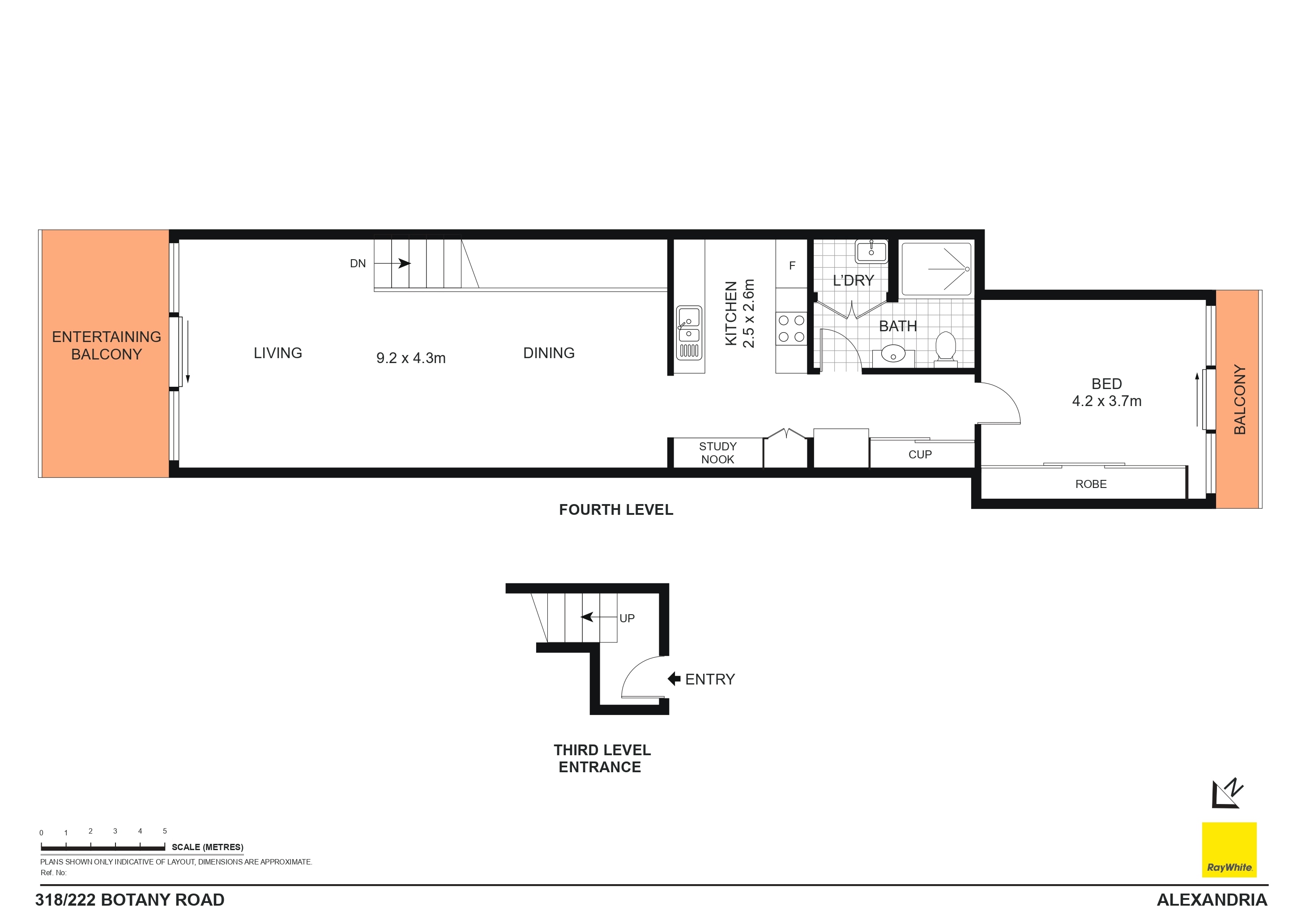
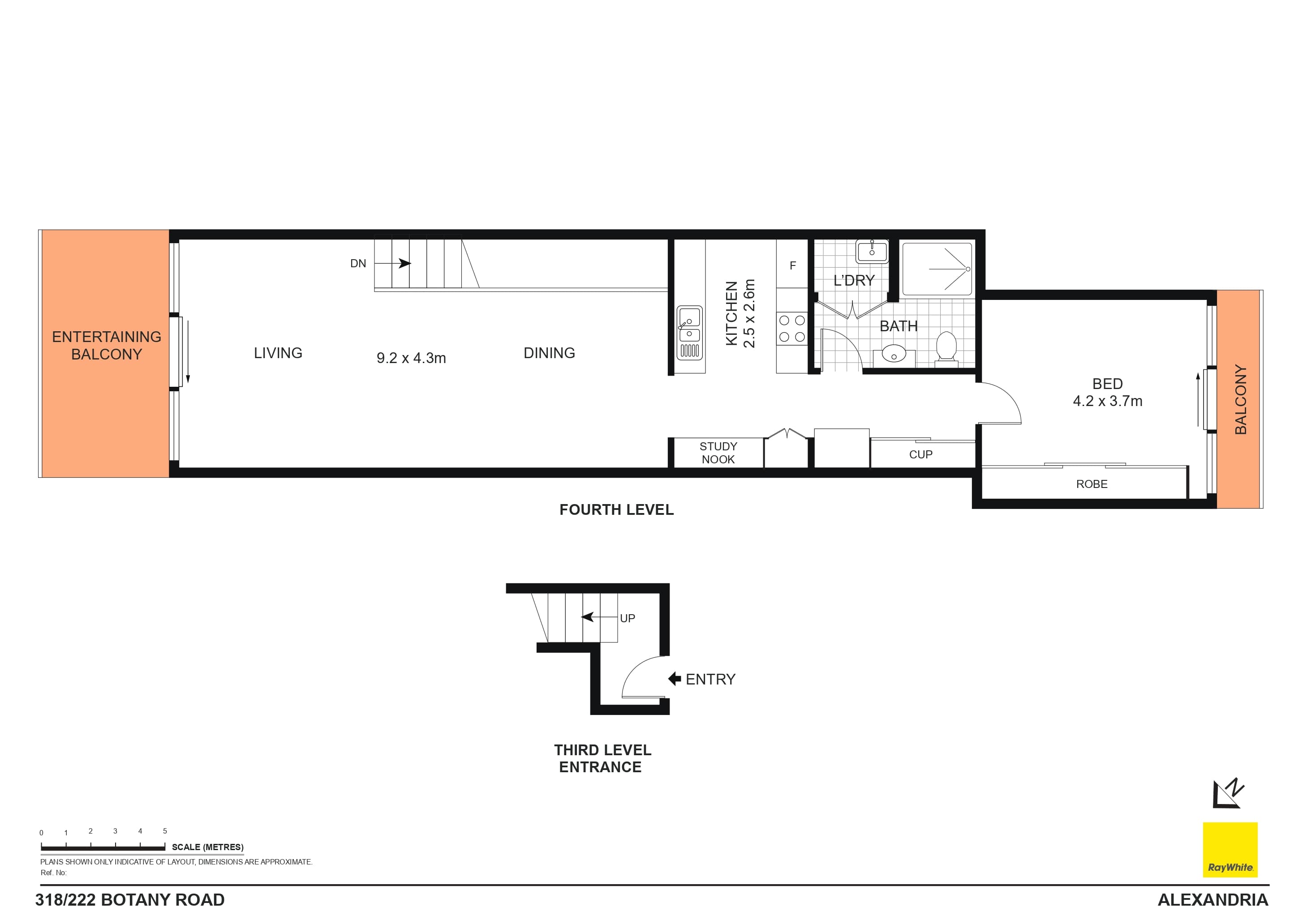
Elevated for peace and privacy, this immaculate one-bedroom apartment seamlessly blends convenience, style, and effortless living. Boasting a well-proportioned floorplan, it offers spacious living areas and a layout that prioritises comfort and functionality, making it the perfect inner-city retreat.
- Light and bright, open plan living/dining area opens to terrace
- Covered terrace with sliding louvers, great cross flow + AC
- Large bedroom w/ extensive built-in robes & private balcony
- Sleek gas kitchen w/ stone benchtops & dishwasher
- Modern bathroom with walk-in shower & internal laundry
- Quality security building with intercom and lift access
- Walk to Green Square Station, cafes, restaurants & Alexandria Park
- Quick access to the CBD with express buses right outside
- Close to supermarkets, retail & vibrant hubs of Erskineville/Newtown
- Strata $1,798pq; Council $365pq; Water $180pq (all approx.)
- Size: 82sqm of in-outdoor space












