508E/96 Parramatta Road, Camperdown
- 3 Bed
- |
- 3 Bath
- |
- 2 Car
Contact Agent
Inspection times
Download PDF
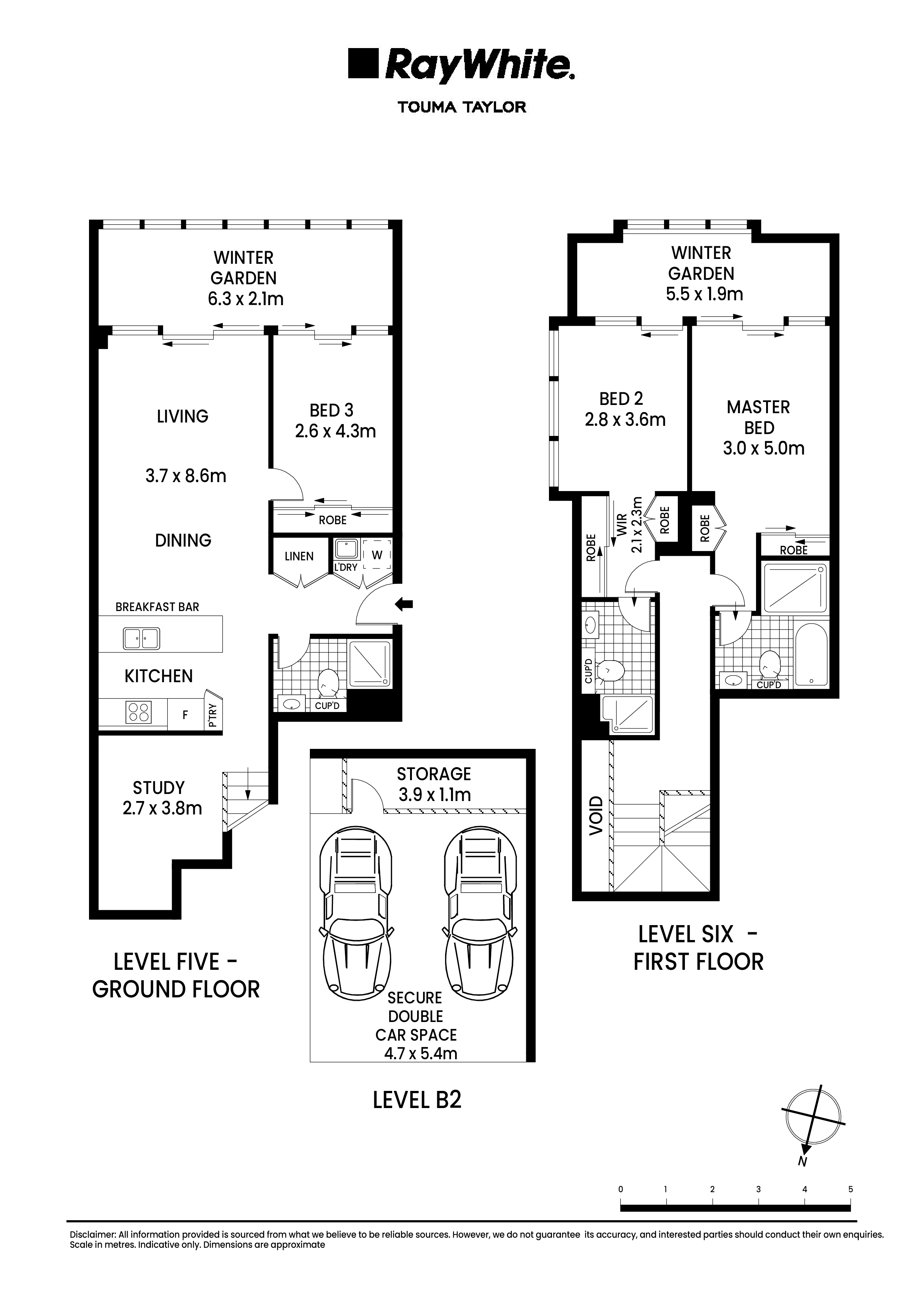
BrochureHouse-size dual level apartment living
Reflecting high standards of contemporary comfort imagined by Allen Jack + Cottier, this immaculate split-level residence is one of the largest in the complex with its top prized corner position. Living space is orientated to the rear of the building, establishing a calm environment where you can cultivate relaxation indoors or out on the wintergarden. With three substantial bedrooms, each with their own bathroom, the upper master frames up an unobstructed view of the city skyline. 'Nelson' is located right across from Deus showroom and the University of Sydney, while a level walk to city buses, Broadway and Central Park shopping centres.
This is a great fit for buyers with a taste for premium contemporary design and appreciation for the building's close proximity to the hospital and university precincts.
- On the market for the first time since completion
- Vibrant living with floor-to-ceiling glazed louvres
- Attention to detail includes seamless outdoor flow
- Top floor corner with privacy with treetop outlooks
- Stone-topped kitchen, s/steel Bosch gas cooking
- Oversize study/WFH zone or second media zone
- Master bedroom with CBD views, extensive robes
- All bedrooms enjoy access to louvred wintergardens
- Modern bathrooms, internal ldry + linen cupboard
- Ducted a/c; lift access to secure parking & storage
- Cross the road to Twelve & Deus for coffee/brunch
- One block from Lyons Rd Park with outdoor gym
- Size - 144sqm internal space + 32sqm pkg/storage
Strata levies: $1,672 pq; Council Rates: $1,280 pa; Water Rates: $880 pa


































